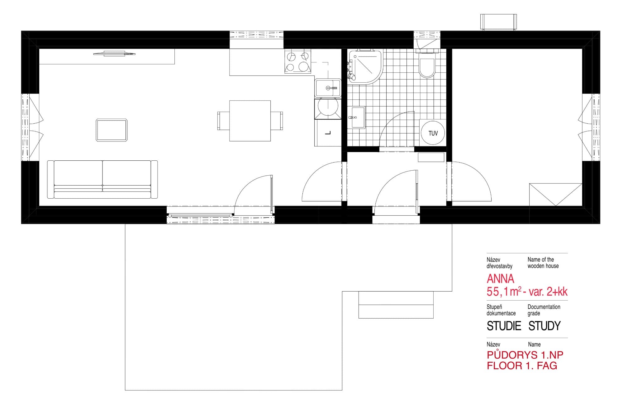
Dřevostavba Anna

75,2 m²,

2+kk

sedlová střecha

Dřevostavba Anna 75,2 m²
varianta: 2+kk
sedlová střecha
Klasický vzhled dřevostavby, Anna, se sedlovou střechou a jednobarevnou fasádou, je ideální volba pro vás, zastánce tradiční architektury v moderním stylu, kteří hledají pohodlí v minimalistickém duchu ať k rekreaci, trvalému bydlení nebo pro vaše podnikání - individuálně upravené provozovny pro vaši kancelář, restauraci, fitness, salón, apod..
Často lze stavět i bez vyřizování povolení na stavebních úřadech.
Lze stavět u přímo na vašem pozemku.
Termín dodání: 5-8 týdnů.
Exteriér
Modulový dům - dřevostavba Anna,
tradičního vzhledu: se sedlovou odvětrávanou střechou a v základu jednobarevnou fasádou, vyrábíme jak typizované, tak individuálně řešené, bytové jednotky k rekreaci a sezónnímu využití, tak i dřevostavby modulových domů pro celoroční bydlení či individuálně přizpůsobené pro vaše podnikání.
Projekt
Počet místností (základ) 3+kk
Ubytování pro počet osob 3-6
Termín dodání (týdnů) 5-8
Šířka (m) 5,35
Délka (m) 14,09
Zastavěná plocha (m²) 75,2
Užitná plocha přízemí (m²) 60,5
Užitná plocha celkem (m²) 60,5
Typ střechy sedlová
Výška v nejv. bodě (m) 4,5
Sklon střechy (°) 18
Možnost dokončení svépomocí ano
Interiér
Hravě i vám přizpůsobíme váš projekt dřevostavby modulového domu Anna podle Vašich požadavků:

Ať se jedná o zastavěnou nebo užitnou plochu vaší dřevostavby, tak i počet a dispozice místností, výbavu technologiemi nebo jen přípravu pro technologie, které si pořídíte později.

Výsledná cena dřevostavby pak obsahuje i potřebné služby k realizaci, které budou upřesněny po vyhotovení konkrétní projektové dokumentace zohledňující vaše požadavky na výbavu a dílo jako celek. 
K dokončení

1.540.000,- Kč

Na klíč

1,790,000.00 Kč

Projekt   74 990 Kč (pevná cena po celé ČR)
Stavební povolení   20 000 Kč (pevná cena po celé ČR)
Základy - zemní vruty od   139 990 Kč (cena dle podloží)
Doprava a režije 10-15%   z ceny domu bez DPH
Uvedené ceny jsou bez příslušné sazby DPH:
● Snížená sazba DPH 12% – bude dle § 48a § 49 zákon č. 235/2004 Sb., o dani z přidané hodnoty uplatněna na rodinné domy určené k trvalému bydlení.
● Základní sazba DPH 21% – bude uplatněna v ostatních případech, tedy i k rekreačním účelům a stvaby vašemu podnikání.

Výsledná cena obsahuje i potřebné služby k realizaci, které budou upřesněny po vyhotovení konkrétní projektové dokumentace zohledňující vaše požadavky na výbavu a dílo jako celek.
Standardní vybavení
Dřevostavba Anna 75,2 m², 2+kk
Základní popis
● Dřevostavba realizována na stavebním pozemku klienta.
● Dřevostavby sestavujeme, z předem, prefabrikovaných dílců připravovaných ve výrobním závodě Sedlčany, Česká Republika.

✓ Odvětrávaná střešní konstrukce - sbíjený vazník, plechová střešní krytina.
✓ Izolace střechy: čedičová vata / foukaná izolace.
✓ Dodávka včetně svodů vody a okapů.
✓ Celodřevěná rámová konstrukce - konstrukční certifikované dřevo KVH.
✓ Obvodové nosné stěny - SIP panely s izolací EPS Grey 150 mm.
✓ Kompletní zateplení pláště dřevostavby fasádním polystyrenem.
✓ Fasáda jednobarevná točená silikonová omítka.
✓ Pozinkovaný plech ze spodní části domu - ochrana proti vlhkosti, hmyzu a hlodavcům.
✓ Několika úrovňová paroizolace konstrukce a interiéru.
✓ Hliníkové vstupní dveře.
✓ Šestikomorová plastová okna standardu VEKA s izolačním trojsklem.
✓ Kompletní obvodové stěny - vnitřní stěny: RigiStabil, cerifikovaný protipožární materiál.
✓ Stěny - sprchový kout / vana, koupelna: keramické obklady 30 x 60 cm.
✓ Strop - vodorovný závěs: SDK - red/green - cerifikovaný protipožární a vlhku odolný materiál.
✓ Výmalba interiéru - bílá barva.
✓ Podlahy - obytné místnosti: laminátová finální podlaha vč obvodových lišt.
✓ Podlahy - WC / koupelna: keramická dlažba 60 x 60 cm.
✓ Interiérové dveře včetně zárubní, bez prosklení.
2 lokální rekuperační jednotky - odvod vlhkosti a přívod čerstvého vzduchu.
Výbava
✅ Elektroinstalace včetně revize.
● Instalace rozvodů vody a odpadu včetně tlakových zkoušek.
✅ Elektrický ohřev přívodu vody - zabraňuje zamrzání přívodu vody v zimě.

✓ Topení - elektrické přímotopy (příprava končí el. zásuvkou).
✓ Elektrický topný žebřík v koupelně.
✓ Ohřev teplé vody - bojler 80l.
✓ Koupelna - kompletní sanitární vybavení: kombinované keramické WC, umyvadlo, sprchový kout / vana.
✓ Kompletní rozvody vody a odpadů - zakončené zátkami: pračka / sušička (koupelna), dřez a myčka (kuchyň).
✓ Zkompletované vypínače a zásuvky ABB Tango.
✓ Rozvody osvětlení - 1 kabel se svorkovnicí v každé místnosti, 2 kabely - koupelna a kuchyň.
Neobsahuje
Lze si přiobjednat u nás nebo si zajistit sami, svépomocí, nebo u externích řemeslných firem:

⌧ PODKLADY:
Projektovou dokumentaci, statická posouzení stavby, geodetická zaměření a další dokumenty a odborné posudky potřebné k zajištění stavebního povolení a kolaudaci stavby.

⌧ POZEMEK:
Jímky a nádrže na vodu a odpad, terasa, zastřešení terasy, pergola, parkovací stání, garáž, zimní zahrada, oplocení, chodníky a cesty, apod.

⌧ ZÁKLADY:

Zemní vruty, betonové patky, betonovou základovou desku.

⌧ STŘECHA:
Přesahy střechy, hromosvod.

⌧ FASÁDA:
Odvětrávaná fasáda, prostup pro komín / krbovou vložku, komín, venkovní rolety a žaluzie, osvětlení a zásuvky, stříška nad vchodem, zahradní ventil vody, wallbox pro nabíjení elektromobilu.

⌧ VÝBAVA INTERIÉR:
Vnitřní rolety a žaluzie, celodekor oken a balkonových dveří – stejná barva vně i uvnitř domu, dodávku a montáž světel, dodávku podlahového vytápění, prosklené interiérové dveře, včetně obložek, předstěnu pro závěsné WC – Geberit, bidet vč. bidetové sprchy, přípravu pro kamna / krbovou vložku, centrální rekuperační jednotku, klimatizační jednotku, modem/router, rozbočovač TV/SAT, fotovoltaiku, nábytek a další nespecifikované vybavení.
Základní popis
● Dřevostavba realizována na stavebním pozemku klienta.
● Dřevostavby sestavujeme, z předem, prefabrikovaných dílců připravovaných ve výrobním závodě Sedlčany, Česká Republika.

✓ Odvětrávaná střešní konstrukce - sbíjený vazník, plechová střešní ✓ krytina.
✓ Izolace střechy: čedičová vata / foukaná izolace.
✓ Dodávka včetně svodů vody a okapů.
✓ Celodřevěná rámová konstrukce - konstrukční certifikované dřevo KVH.
✓ Obvodové nosné stěny - SIP panely s izolací EPS Grey 150 mm.
✓ Kompletní zateplení pláště dřevostavby fasádním polystyrenem.
✓ Fasáda jednobarevná točená silikonová omítka.
✓ Pozinkovaný plech ze spodní části domu - ochrana proti vlhkosti, hmyzu a hlodavcům.
✓ Několika úrovňová paroizolace konstrukce a interiéru.
✓ Hliníkové vstupní dveře.
✓ Šestikomorová plastová okna standardu VEKA s izolačním trojsklem.
✓ Kompletní obvodové stěny - vnitřní stěny: RigiStabil, cerifikovaný protipožární materiál.
✓ Strop - vodorovný závěs: SDK - red/green - cerifikovaný protipožární a vlhku odolný materiál.
✓ Podlahy - k dokončení objednatelem.
2 lokální rekuperační jednotky - odvod vlhkosti a přívod čerstvého vzduchu.
Výbava
● Umožňuje dokončení koupelny a výmalbu, svépomocí či vlastními řemeslníky.
✅ Elektroinstalace včetně revize.
● Instalace rozvodů vody a odpadu včetně tlakových zkoušek.

✅ Topení - elektrické přímotopy a elektrický topný žebřík (příprava končí el. zásuvkou).
✓ Ohřev teplé vody - bojler / průtokový ohřívač (kopl. příprava končí el. zásuvkou a zátkami vody a odpadů).
✓ Koupelna - příprava pro sanitární vybavení (kompletní rozvody vody a odpadů končí zátkami): kombinované keramické WC, umyvadlo, sprchový kout / vana.
✓ Kompletní rozvody vody a odpadů - zakončené zátkami: pračka / sušička (koupelna), dřez a myčka (kuchyň).
✓ Zkompletované vypínače a zásuvky ABB Tango.
✓ Rozvody osvětlení - 1 kabel se svorkovnicí v každé místnosti, 2 kabely - koupelna a kuchyň.
✓ Elektrický ohřev přívodu vody - zabraňuje zamrzání přívodu vody v zimě.
Neobsahuje
Lze si přiobjednat u nás nebo si zajistit sami, svépomocí, nebo u externích řemeslných firem:

⌧ PODKLADY:
Projektovou dokumentaci, statická posouzení stavby, geodetická zaměření a další dokumenty a odborné posudky potřebné k zajištění stavebního povolení a kolaudaci stavby.

⌧ POZEMEK:
Jímky a nádrže na vodu a odpad, terasa, zastřešení terasy, pergola, parkovací stání, garáž, zimní zahrada, oplocení, chodníky a cesty, apod.

⌧ ZÁKLADY:

Zemní vruty, betonové patky, betonovou základovou desku.

⌧ STŘECHA:
Přesahy střechy, hromosvod.

⌧ FASÁDA:
Odvětrávaná fasáda, prostup pro komín / krbovou vložku, komín, venkovní rolety a žaluzie, osvětlení a zásuvky, stříška nad vchodem, zahradní ventil vody, wallbox pro nabíjení elektromobilu.

⌧ VÝBAVA INTERIÉR:
Vnitřní parapety, výmalbu, vnitřní rolety a žaluzie, celodekor oken a balkonových dveří – stejná barva vně i uvnitř domu, dodávku a montáž světel, dodávku finálních podlah a dodatečné izolace, dodávku podlahového vytápění, interiérové dveře a obložky, koupelna bez dlažby, obkladů stěn a sanitárního vybavení, předstěnu pro závěsné WC – Geberit, ventilaci WC/koupelna, zařízení pro vytápění a ohřev vody, přípravu pro kamna / krbovou vložku, klimatizační jednotku, modem/router, rozbočovač TV/SAT, fotovoltaiku a další nespecifikované vybavení.
Můžete ještě přikoupit
Dřevostavba Anna 75,2 m², 2+kk
Exteriér
o Změna rozměrů dřevostavby - individuální projekt.
o Zvýšení protipožární odolnosti vaší dřevostavby.
o Základy - zemní vruty, betonové pasy / patky, betonová deska, klimatizační jednotka / tepelné čerpadlo.
o Větší přesah či sklon střechy.
o Změna střešní krytiny.
o Osvětlení a zásuvky na fasádě.
o Venkovní nezámrzný kohout na fasádě.
o Připojení wallboxu na fasádě.
o Změna vzhledu fasády - možná kombinace točená omítka / dřevo / plechová krytina.
o Dřevěná fasáda:
Tlakově impregnovaná RombusDuo,
Thermowood RombusTriple.
o Dvoukřídlé balkónové dveře / HS portál.
o Hliníková okna.
o Stínící technika a sítě proti hmyzu.
o Hromosvod.
o Nerezový komínový systém na fasádě.
o Držák antény TV/SAT na fasádě.
o Přípravu na tepelné čerpadlo vzduch - vzduch s funkcí klimatizace.
o Přípravu pro fotovoltaický systém, solární panely.
o Dřevěné schůdky k domu / terasa.
o Přístřešek nad vchod domu.
o Dřevěná terasa bez / se zastřešením.
o Pergola k domu.
Interiér
o Změna rozměrů místností a dispozic - individuální projekt.
o Samostatná koupelna a samostatné WC.
o Možnost přiznaných šikmin stropu.
o Zvýšení protipožární odolnosti vaší dřevostavby – stěny, stropy, elektrické zásuvky.
o Dodatečná akustická izolace interiéru.
o Niky a přizdívky v koupelně.
o Závěsné WC - Geberit s předstěnou.
o Bidet včetně sanitárního příslušenství.
o Okna - celodekor, stejná barva oken uvnitř i vně.
o Změna designu koncových prvků zásuvek a vypínačů.
o Klimatizační jednotka s funkcí topení, multisplit.
o Tepelné čerpadlo s funkcí klimatizace.
o Podlahové vytápění: InfraFólie, elektrické topné kabely, teplovodní rozvody.
o Centrální rekuperační jednotka namísto lokálních jednotek.
o Změna obkladu stěn a stropů - dřevo / panely.
o Interiérové dveře s prosklením.
o Bezfalcové / posuvné interiérové dvěře.
o Finální podlahy:
dřevo, dvouvrstvá nebo třívrstvá podlaha,
vinyl, klik systém / lepený,
dlažba.
o Certifikovaný nehořlavý prostup pro krbová kamna s výztuhou pro komín.
o Kamna / krbová kamna.
Exteriér
o Změna rozměrů dřevostavby - individuální projekt.
o Zvýšení protipožární odolnosti vaší dřevostavby.
o Základy - zemní vruty, betonové pasy / patky, betono
vá deska, klimatizační jednotka / tepelné čerpadlo.
o Větší přesah či sklon střechy.
o Změna střešní krytiny.
o Osvětlení a zásuvky na fasádě.
o Venkovní nezámrzný kohout na fasádě.
o Připojení wallboxu na fasádě.
o Změna vzhledu fasády - možná kombinace točená omítka / dřevo / plechová krytina.
o Dřevěná fasáda:
Tlakově impregnovaná RombusDuo,
Thermowood RombusTriple.
o Dvoukřídlé balkónové dveře / HS portál.
o Hliníková okna.
o Stínící technika a sítě proti hmyzu.
o Hromosvod.
o Nerezový komínový systém na fasádě.
o Držák antény TV/SAT na fasádě.
o Přípravu na tepelné čerpadlo vzduch - vzduch s funkcí klimatizace.
o Přípravu pro fotovoltaický systém, solární panely.
o Dřevěné schůdky k domu / terasa.
o Přístřešek nad vchod domu.
o Dřevěná terasa bez zastřešení / se zastřešením.
o Pergola k domu.
Interiér
o Změna rozměrů místností a dispozic - individuální projekt.
o Samostatná koupelna a samostatné WC.
o Možnost přiznaných šikmin stropu.
o Zvýšení protipožární odolnosti vaší dřevostavby – stěny, stropy, elektrické zásuvky.
o Dodatečná akustická izolace interiéru.
o Niky a přizdívky v koupelně.
o Závěsné WC - Geberit s předstěnou.
o Bidet – kompletní rozvody.
o Keramická dlažba 60 x 60 cm a obklady 30 x 60 cm (koupelna).
o Koupelna - usazení vybraného sanitárního vybavení včetně příslušenství.
o Okna - celodekor, stejná barva oken uvnitř i vně.
o Změna designu koncových prvků zásuvek a vypínačů.
o Klimatizační jednotka s funkcí topení, multisplit.
o Tepelné čerpadlo s funkcí klimatizace.
o Podlahové vytápění: InfraFólie, elektrické topné kabely, teplovodní rozvody.
o Centrální rekuperační jednotka namísto lokálních jednotek.
o Změna obkladu stěn a stropů - dřevo / panely.
o Interiérové dveře s prosklením.
o Bezfalcové / posuvné interiérové dvěře.
o Finální podlahy:
dřevo, dvouvrstvá nebo třívrstvá podlaha,
vinyl, klik systém / lepený,
dlažba.
o Certifikovaný nehořlavý prostup pro krbová kamna s výztuhou pro komín.
o Kamna / krbová kamna.

Máte jinou představu o vzhledu vaší vysněné dřevostavby, výbavě technologiemi ?

Hledáte řešení šité, přímo na míru vám a vašim potřebám?

Uvědomujeme si, že každý z nás má své jedinečné představy o tom, jak by měl vypadat jeho ideální prosotr k rekreaci, domov, místo k práci a podnikání.

Možná máte v hlavě jasnou představu, kterou si přejete zhmotnit a schází vám na našich stránkách.
I to je naprosto v pořádku!

Jsme připraveni, abychom společně s vámi proměnili i vaše sny ve skutečnost. Máte vaši bvysněnou dřevostavbu na dosah. Směle nám napište nebo zavolejte i Vy.

K dokončení

DODÁVKA DŘEVOSTAVBY, K DOKONČENÍ, pro usazení na zemní vruty/patky, OBSAHUJE:

dokončená odvětrávaná sedlová střecha z plechové krytiny, okapy a svody vody, fasáda zateplená polystyrenem včetně jednobarevné silikonové omítky, ochrana konstrukce podlah dřevostavby proti vlhkosti, hmyzu a hlodavcům – ze spoda pozinkovaný plech.
S instalovanými plastovými a balkónovými okny VEKA, s trojskly, vchodovými dveřmi, vše včetně parapetů a klempířských prvků.

DOKONČENÍ INTERIÉRu
Paroizolace dřevostavby: včetně spojů a napojení SIP panelů, oken a dveří, veškeré prostupy rozvodů instalací podlahou, stěnou/fasádou.
Kompletní dodávka elektroinstalace: včetně uzemnění, rozvodů TV/SAT, internet, zapojená rozvodná skříň, zásuvky a vypínače ABB Tango, ochrana přívodu vody proti zamrzání, osvětlení: ukončené 1 kabelem se svorkovnicí v každé místnosti, kuchyň koupelna 2 kabely.
Kompletní rozvody vody a odpadů: v koupelně i pro kombinované keramické WC, pračku/sušičku, myčku v kuchyni, uzavřené zátkami.

TECHNOLOGIE
Digestoř: veškeré prostupy a elektroinstalace (kompletní příprava).
Ventilace a Rekuperace: 3 lokální rekuperace BSK Zephyr 160/500, kompletní příprava – ventilátor koupelna/WC.
Topení: rozvody elektroinstalace pro el. přímotopy a topný žebřík (koupelna), končí el. zásuvkou.
Ohřev teplé vody: veškerá příprava rozvodů pro elektrický přímotop/bojler – koupelna, končí el. zásuvkou a zápletkami ve zdi.

VZHLED INTERIÉRu: kompletní záklop stěn a stropů:
Stěny: sádrovláknité desky RigiStabil, včetně tmelení a přebroušení.
Stropy: vodorovný závěs – sádrokartonové desky SDK – červený/zelený, včetně tmelení a přebroušení.

Na klíč

DODÁVKA DŘEVOSTAVBY, NA KLÍČ, pro usazení na zemní vruty/patky, OBSAHUJE:

dokončená odvětrávaná sedlová střecha z plechové krytiny, okapy a svody vody, fasáda zateplená polystyrenem včetně točené jednobarevné silikonové omítky, ochrana konstrukce podlah dřevostavby proti vlhkosti, hmyzu a hlodavcům – ze spoda pozinkovaný plech.
Instalovaná okna, balkónové dveře, plast, VEKA, s trojskly, vchodové dveře, včetně klempířských prvků a parapetů.

DOKONČENÍ INTERIÉRu
Paroizolace dřevostavby: včetně spojů a napojení SIP panelů, oken a dveří, veškeré prostupy rozvodů instalací podlahou, stěnou/fasádou.
Kompletní dodávka elektroinstalace: včetně uzemnění, rozvodů TV/SAT, internet, zapojená rozvodná skříň, zásuvky a vypínače ABB Tango, ochrana přívodu vody proti zamrzání, osvětlení: ukončené 1 kabelem/svorkovnicí v každé místnosti, kuchyň koupelna 2 kabely.
Kompletní rozvody vody a odpadů: v koupelně i pro pračku/sušičku, myčku v kuchyni, uzavřené zátkami.

TECHNOLOGIE
Digestoř: veškeré prostupy a elektroinstalace (kompletní příprava).
Ventilace a Rekuperace: 3 lokální rekuperace BSK Zephyr 160/500, instalovaný ventilátor koupelna/WC.
Topení: rozvody elektroinstalace pro el. přímotopy (končí el. zásuvkou), topný žebřík – koupelna.
Ohřev teplé vody: elektrický bojler 80l – koupelna.

VZHLED INTERIÉRu:
Stěny: sádrovláknité desky RigiStabil, včetně tmelení, přebroušení a finální výmalby, bílou barvou; sprchový kout – keramický obklad.
Stropy: vodorovný závěs – sádrokartonové desky SDK – červený/zelený, včetně tmelení, přebroušení a finální výmalby, bílou barvou.
Finální podlahy: obytné místnosti – laminátové podlahy včetně izolační podložky / koupelna a WC – keramická dlažba.

VÝBAVA INTERIÉR: Vnitřní parapety, interiérové dveře (bez prosklení) a obložky, kompletní sanitární vybavení – koupelna a WC: umyvadlo včetně vodovodní baterie, sprchový kout (vanička vč. prosklení) nebo vana vč. sprchové baterie, hadice a sprchy, kombinované WC (na podlaze).

Dřevostavba Anna 75,2 m², varianta: 2+kk, sedlová střecha